厳選されたアイテムだけに囲まれる暮らし
鎌倉市由比ガ浜
FULL
素敵な人は自宅の荷物が少ないだけでなく、厳選されたトキメク物に囲まれている。不安だから持つのではなく、持っていて心地よいかが基準。朝起きてふと目に入る窓辺に気分の上がるグリーンやアートを置いてみよう。
- 賃料
- FULL
- 交通
- 江ノ島電鉄 由比ヶ浜 徒歩3分
- 建物面積 又は専有面積
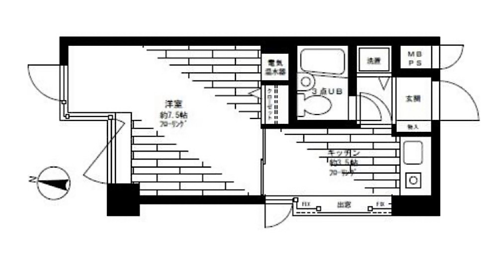
- 24.42㎡
- 建物構造
- RC4階建て
- 間取り
- 1K
- 築年数
- 築29年
- 敷金
- 1ヶ月
- 礼金
- 1ヶ月
- 管理費
- ー
- 損害保険料
- 20,000円/2年
- 家賃保証会社の利用
- 月額費用の40~50%(最低金額25,000円)、1年毎に更新保証料10,000円
- 契約形態 期間
- 普通 2年
- ペット可否
- 不可
- 取引様態
- 媒介
- 備考
- 鍵交換代:19,800円、 アクト安心ライフ24:16,500円 システム利用料:275円/月 解約時敷金1ヶ月 償却 ※B・T同室、シャワー、浴室乾燥機、トイレ、洗面台、IHクッキングヒーター、クローゼット、シューズボックス、冷蔵庫、室内洗濯機置場、洗濯機置場 出窓、フローリング、全居室フローリング、エアコン、BS端子、インターネット対応、オートロック、エレベーター
- 情報登録日
- 2020/07/18
- ハッシュタグ







